

Drawing Production
Models without drawings aren't complete deliverables. We produce stage-appropriate ASMEPF drawings directly from coordinated BIM models — ensuring that what's in the model is what's on the sheet, and that site teams always have clear, accurate information to work from.

-
Concept-level ASMEPF layouts
-
Single-line system diagrams where applicable
-
Drawings aligned with drawing registers and consultant standards
Schematic Design (SD) Drawings
Detailed Design (DD) Drawings
-
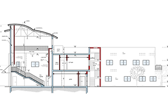
Coordinated ASMEPF plans, sections, and elevations
-
Schedules derived from BIM models
-
Drawings aligned with TIDP/MIDP and consultant CAD/BIM standards
-
AD/BIM standards


-
Fully coordinated ASMEPF drawings ready for tendering
-
Builders' work drawings — openings, sleeves, embeds, penetrations
-
Enlarged plans for congested zones and plant rooms
Tender / IFC / GFC Drawings
Multidisciplinary Shop Drawings
-
Coordinated ASMEPF shop drawings for site installation
-
Sections and elevations clarifying installation intent
-
Layouts aligned with approved routing, levels, and clearances
-
Builders' work and penetration drawings


-
Floor-wise and system-wise as-built plans
-
Sections and elevations showing actual routing and levels
-
Dimensions and clearances derived from verified geometry or scan data
-
Drawings aligned with installed ASMEPF systems